怎樣快速讀懂消防圖紙?看這里!
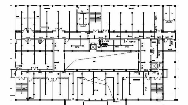
消防圖紙大致分為消防水、消防電、氣體消防,任何一份圖紙,都要先看設計說明和圖例。設計說明是圖紙的提綱,標記的是設計意圖、內容等要素。不同的圖紙使用的設計圖例可能會有差別。系統圖,繪制的是整個系統的工作狀態以及連接方式。平面圖,是對系統圖的進一步細化,表明設備的安裝方式、位置及連接方式等。讀圖的時候平面圖與系統圖進行對照,用以將整個系統聯系起來。

消防工程圖首先看總平面圖,在圖紙上分清各建筑,再看圖紙設計說明和圖例,記清其中的符號標示。然后看系統圖和各層消防平面圖,如果存在不明白或矛盾的地方,可以翻閱同一工程的建筑、裝潢、空調圖,通過參考比對分析就可以快速看懂圖紙。

看懂消防圖紙還需了解以下知識:
1、消防工程圖紙一般分為給排水(自動噴淋、消火栓、氣體滅火)和電氣(火災自動報警)兩部分,有時建設方會安排消防公司做防排煙。
2、消防預算根據專業分類,特定的設備安裝費用在消防安裝定額里都能找到,比如噴頭、水噴淋管道、支吊架、消火栓、報警閥、探頭、模塊、報警設備等。其它通用部分可以套用相應專業定額,如消火栓管道安裝套用給排水管道定額,泵房管道安裝套用工業管道定額,消防泵安裝套用機械設備安裝定額,閥門法蘭安裝套用工業管道定額,報警部分的線管安裝套用電氣安裝定額等。
3、材料的算法:設備數量按圖數即可,管道、線管要自己完善。
根據系統圖結合平面圖看每層管線走向。一般先找到進入點,再按系統管線的布置找每一層平面圖的具體位置。一般在系統圖上看管線連接和管線規格,在平面圖電氣回路處看線的標識。
例:某消防廣播總線標識為采用2xZRBV-1.5mm²線,意思為2根1.5平方銅芯阻燃聚氯乙烯絕緣電線(ZRBV),其由兩根線組成回路,在系統圖上只畫一根線表示,但計算長度時,要計算兩根。
例:消防電話總線采用ZRRVVP-2x1.0mm²線,意思為一根阻燃屏蔽雙絞線電纜,面積為2*1mm²,在系統圖上示意用一根線表示,計算長度時,按一根計。
一般線纜字母前面的數字表示根數,后面的數字表示一根線纜由幾芯組成,如上面的2*1mm²,表示由兩芯1mm²導線組成一根線纜。電纜的符號標識還有很多,例如,(ZR阻燃),(NH耐火),(WDZ低煙無鹵)等,不同標識價格不同,作用也不同。
海灣消防安全有限公司主營:GST海灣消防報警設備銷售,消防工程施工改造,氣體滅火、電氣/漏電火災、消防水系統施工安裝,售后維修保養,檢測,調試,海灣消防網站:http://m.zzjqdkj.com/;海灣消防服務熱線:4006-598-119
本頁關鍵詞:


蘇公網安備32058102002148號